Trilocale via Cassia 1811, La Storta, Roma
209.000,00 €
CASSIA - LA STORTA
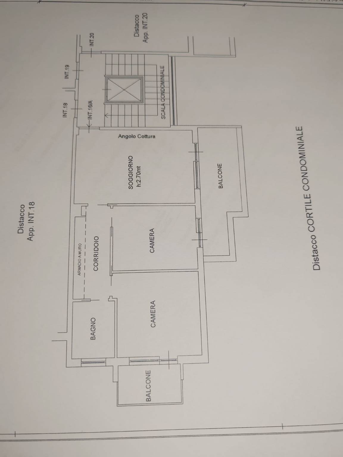
Adiacente a tutti i servizi principali (trasporti, scuole, supermercati) in un piccolo comprensorio silenzioso con ampi spazi condominiali, in palazzina recentemente ristrutturata con superbonus (cappotto termico, pannelli solari, coibentazione lastrico solare, infissi, porta blindata, caldaia) proponiamo in vendita uno splendido e panoramico trilocale pari al nuovo così composto: soggiorno con angolo cottura, balcone vivibile, camera matrimoniale con balcone, cameretta, servizio, ampio armadio a muro. Completa la proprietà un lastrico solare con una vista (sovrastante l'appartamento) di 140 mq ed un posto auto nella corte condominiale. L'immobile si presenta in ottimo stato, pari al nuovo e viene venduto arredato.
Adiacente a tutti i servizi principali (trasporti, scuole, supermercati) in un piccolo comprensorio silenzioso con ampi spazi condominiali, in palazzina recentemente ristrutturata con superbonus (cappotto termico, pannelli solari, coibentazione lastrico solare, infissi, porta blindata, caldaia) proponiamo in vendita uno splendido e panoramico trilocale pari al nuovo così composto: soggiorno con angolo cottura, balcone vivibile, camera matrimoniale con balcone, cameretta, servizio, ampio armadio a muro. Completa la proprietà un lastrico solare con una vista (sovrastante l'appartamento) di 140 mq ed un posto auto nella corte condominiale. L'immobile si presenta in ottimo stato, pari al nuovo e viene venduto arredato.
Caratteristiche
Dati principali
- Metratura: 60.0 m²
- Piano: Quinto
- Arredamento: Arredato
Composizione interna
- Bagni: 1
- Numero totale di locali: 3
Impianti e spese
Dati catastali
Accessori
- Ascensore: Sì
- Balcone: Sì
- Terrazzo: Sì
IN VENDITA